











图中项目分别为:麦垛、城南堂教堂、湖南广电芒果马栏山广场、益阳·三周文化园。
魏春雨,东南大学建筑学博士,湖南大学建筑与规划学院教授、博导。地方工作室主持建筑师,湖南大学设计研究院首席总建筑师,英国皇家特许注册建筑师。中国建筑学会理事会理事、教育部高等学校教指委建筑学分委会委员、住建部建筑设计专业委员会委员、中国建筑学会建筑教育奖获得者。
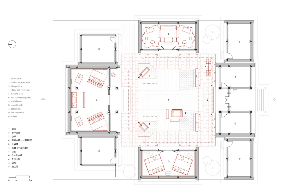
地方工作室扎根中国中南部湖南地区20余年,长期致力于“地方建筑学”的理论研究与设计实践,构建了“理论—实践—批判”三位一体的地方建筑学研究体系。工作室秉持问题导向的研究立场,立足具身性场所体验和地方材料的诗意建造。近期完成的重点设计项目:长沙智谷·数字空间站、益阳三周文化园、城南堂教堂、湖南广电芒果马栏山广场、麦垛空间。魏春雨及其团队在实践中完成着双向探求:一是构建融合在地原型与当代表达的建造体系;二是在此基础上,深刻揭示了建筑于社会性与自治性间的平衡之道。






图中项目分别为:蛇口文体公园、深圳国际艺展中心(iADC)艺术小镇02-12地块2#、天府国际会议中心、深圳市光明国际马术中心。
汤桦,重庆大学建筑城规学院教授,深圳汤桦建筑设计事务所有限公司主持建筑师。国家一级注册建筑师,高级建筑师,APEC建筑师,中国建筑学会常务理事。2012 年获中国建筑学会授予当代中国百名建筑师荣誉,2018 年获“重庆市工程勘察设计大师”称号,2020 年获“深圳市工程勘察设计功勋大师”称号。
汤桦主持过近 500 个项目的设计,建成 80 余个项目,涉及文化建筑、公共机构、工业建筑、教育建筑、酒店建筑、办公建筑等领域。其中2024—2025年度建成蛇口文体公园、深圳光明国际马术中心等项目。蛇口文体公园以符合岭南气候特征的方式,为社区提供了不同层次的开放公共空间,使人可以从蜿蜒的公园空间中漫步至建筑的每一层,而不受建筑运营的限制,同时提供大量拥有遮风避雨的开放场所。光明国际马术中心则用胶合木结构同时为场馆内多个功能提供屋架,整合光、风、景,实现了建筑内外的一体互动性以及反映了岭南的地域特征。






图中项目分别为:穿云编木隧、杭州钱塘江博物馆、丽水古堰画乡艺术中心、科大讯飞AI总部园区。
line+建筑事务所由主持建筑师孟凡浩和朱培栋创立,是一家具备国际视野的创新型事务所,以“空间赋能”作为研究与创作的核心策略,回应时代背景下城市与乡村的矛盾挑战,释放并迭代建筑在社会、经济、文化等多领域的价值。在2024—25年度,line+建筑事务所通过一系列融合文化洞察、技术实验与社会参与的开创性项目。
在公共与文化建筑领域,他们重新思考建筑与日常生活的互动方式。位于丽水的古堰画乡艺术中心在设计阶段提出“运营前置”概念,建筑以开放的底层空间和复合尺度的布局,成为小镇文化与经济共生的社区枢纽。杭州钱塘江博物馆则以“公共空间返还率”将博物馆定义为一个新型的全时段公共空间。
在城市更新领域,杭州 LOFT 49 项目展示了如何在保留工业遗存的同时激活新型城市生态。在乡村振兴方面,松阳·飞蔦集通过“手工修复+现代预制”的策略改造废弃夯土房,既延续传统肌理,又提升结构性能,使百年古村焕发新生,成为文化与社区共生的当代范本。
在装置与技术探索中,他们持续推动传统材料与前沿科技的融合。穿云编木隧以非遗竹编为构筑语汇,将生态修复与文化符号相结合,既呼应当地文化记忆,又通过数字化建造实现工艺的再生。跨学科协作是line+实践的基石。他们与工程师、工匠、生态学者及政策制定者紧密合作,开发创新设计与生产框架。在科大讯飞AI总部园区项目中,他们与领先的人工智能团队协作,探索智能科技与空间体验的深度融合。


Ms MIN 2025秋冬系列和2026春夏系列。
刘旻(Min),Ms MIN创始人及创意总监。出生于中国福州。毕业于英国伦敦时装学院女装设计与制作本科专业。
2010年,她在中国厦门创立品牌Ms MIN,以一组新春系列开启品牌旅程,成为中国设计师品牌中最早走电商路径的先行者之一。Ms MIN也率先打破了中式服装固有的结构,以现代化的演绎和表达方式,开创了对现代中国设计的全新构筑。2013年,Ms MIN成为首批入驻连卡佛的中国设计师品牌;2016年,刘旻入围LVMH青年设计师大奖半决赛。作为品牌的灵魂,刘旻至今仍深度参与日常创作。从选材、结构到剪裁,她关注服装如何影响人的呼吸与姿态,让每一件衣物保有自然的留白与精神的余韵。通过反复选择、舍弃与留白,Ms MIN逐步形成了自己的设计节奏。东方文化中的沉静与绽放、含蓄与锋芒在设计中相互交织,融入面料质感、剪裁线条和穿着体验之中,呈现出独特的精神风貌。









图中项目分别为:Soft Power、Hidden in Life、Tsai Light for Cassina、Sparks。
产品设计师,蔡烈超工作室及品牌MARIO TSAI创始人。2011年毕业于北京林业大学,2014年开始独立设计并创立蔡烈超工作室。2019年推动工作室由设计服务型转变为自我驱动的研究型工作室,同时推出同名设计品牌MARIO TSAI。
蔡烈超不拘泥于设计师身份,不受限于常规认知、行业差异和文化背景的约束,以非具体角色跨越设计、艺术、研发、生产和商业多个领域。通过提出问题、直觉判断、研究方法和建立系统四个步骤,以严谨态度质疑,以开放视角探索,简洁高效地执行于创新行动之中。无论是设计咨询合作,还是自主设计研发,蔡烈超都希望遵从内心的人本主义引导,摈弃商业视角和行业教条。从“马扎灯系统”到“柔性力”,蔡烈超深知工程技术探索和系统方法研究是工作室的底层基础,长久实践后的直觉判断是创新活动的指引方向。








图中项目分别为:上海罗意威之家字体与开幕式邀请函与包装设计、FENDI蛇年礼盒、Grid Coffee零售包装、瑷尔博士Dr.Alva品牌焕新、兔头妈妈护牙素、太平市场。
UDL在设计领域持续输出高完成度作品,项目涵盖中国品牌全球化焕新、时尚品牌创意表达、创新产品与工业设计以及文化艺术与跨界活动;同时在国际奖项、行业论坛与学术展览中获得认可,致力于通过全球化的设计语言,塑造鲜明的当代设计图景。
在上海罗意威之家(CASA LOEWE Shanghai)项目中,UDL回溯碑刻字形打造与英文节奏匹配的中文字体,并将西班牙金色陶砖的空间语汇转译为“金砖邀请函”,统一工艺与叙事。2025年新年之际,为Fendi设计了一套书法字帖,以中国书法为灵感纽带,向品牌百年华诞致敬。面向国内市场品牌焕新的案例包括 Grid Coffee“风味档案”零售包装,以及瑷尔博士的品牌视觉识别系统重塑,强调 VI 与 PI 的深结合合,建立一致的产品与品牌视觉语言。创新产品与工业设计方面,UDL为兔头妈妈高端护牙素中研发“波轮式结构”,为儿童创造属于他们的产品语言。在这一系列实践中,UDL始终坚持“在地化与全球化”的双重立场:在地文化根源的探索与全球化视觉语言的并行推进,既回应全球市场的需求,也推动中国设计在国际舞台上的独特表达。







李淼将电影美术从场景设计提升为叙事体系的创造,在《刺杀小说家2》中以神话式文本塑造出具备厚度与历史感的视觉宇宙。
李淼,电影美术指导、造型指导、中国电影美术学会理事、中国电影家协会会员。2004年毕业于中国传媒大学影视艺术学院戏剧影视美术设计系。以《刺杀小说家2》为例,世界观的构建成了美术设计的最重要工作。电影的世界观是一套虚构的规则、体系和元素的总和,它定义了故事宇宙的方方面面,它不满足于讲一个故事,而是要从零开始,建造出一个庞大而完整的视觉世界。










猜一建筑由吴皓天与王赟于2023年创立,文化在地性与技术实验两大核心。通过多元协作,将建筑视为一种共创过程,并以此重塑地方记忆与当代语境的关联。
猜一建筑于2023年成立,创始人吴皓天、王赟由美国麻省理工学院(MIT)获建筑学硕士学位,在家乡苏州开展关注文化在地性与技术实验性的设计探索。当下实践的复杂性促使他们将建筑理解为与不同利益相关者、不同专业共“猜”的过程。
实践至今的两年中,他们在一系列当地文化导向的竞赛中获得优胜,如莫干山核心景区规划设计国际竞赛金奖、绍兴斗门古镇设计国际竞赛一等奖等;他们逐步深入国内的存量土壤,以建筑为支点,挖掘场地长远的复苏可能:在《只此周庄》剧场立面设计中,他们以洗练的形式与材质,完成了一场与古为新的创作。最近,他们受邀参加2025上海城市空间艺术季,以装置作品《下水那天》建立场地中历史与当下的对峙。









在温州远郊的垟山头村公共建筑项目中,龚晨曦将乡村公共空间作为整体网络,运用在地景观与日常建造手法,成功地重构了亲密的社区关系。
地我建筑由龚晨曦创立。在温州远郊的垟山头村项目中,龚晨曦的设计将村落的公共空间视为一个连续的网络,一个融合的整体,一个体验的结构。她以两处村道整理和三个关键公共节点为切入点,将村落内部的空间网络与外部区域绿道连接起来,为居民创造一个更具整体性的公共生活体验。
在设计策略上,她融合当地的景观传统、历史资源和日常建筑手法,确保新的介入能够融入现有村落肌理;村落的整体性氛围大于单体的特殊性。通过建筑行为本身,不但连接了物理环境,也重建了与社区的深层联系。







高宇航以生活与情绪为灵感,陶瓷作品Land系列与The New Sound系列。
高宇航的创作源自他的生活,他没有接触过专业的陶瓷训练,作品创作更像是一种情绪表达。Land系列与The New Sound系列是他尝试以一种自我对话的方式完成的创作表达。Land系列是高宇航的第一次创作,围绕其记忆中最熟知的画面展开:年少时,被家人陪伴的画面;经历过山河,被景色震撼的瞬间等。The New Sound系列是他的第二次创作,他开始在地下溶洞探索灵感,那里有他从未经历过的生活场景。高宇航希望在日常的、平凡的生活里,通过不断地探索与记录,留下一种新的创作可能。










劳硕维以“quarry’24/Pangolin”为契机,通过跨国共创探索平面设计的思辨性与社会责任。
劳硕维工作室目前是委托者共创式的quarry’24Pangolin,正如今年工作室更名中隐含的期望一样,“quarry”为“采石场”,比喻的是一切建筑形式的基础形态,劳硕维想借此尝试找到平面设计在新世界中,更基于个人思辨与社会责任的角色。工作方式也从原来的线下雇佣转移到了多国籍合作者、多时区工作模式、多专业背景互助的线上团队合作。在quarry’24/Pangolin中,劳硕维实践的项目包括了:在做书图书市集2024、LAARVEE、KILN三位委托方上。在他的合作项目实践中,平面设计师介入角色变得敏感、灵动而别具一格。







六边形模块为起点,李柯君在Cadenza与Neo-Baroqueism中探索理性与感性、标准与不标准之间的无限可能。
李柯君工作室近年来的代表性实践——Cadenza与Neo-Baroqueism,都源自一个“标准”的六边形模块,却展现了在“标准”与“不标准”之间的丰富可能。
Cadenza强调模块的自由拼接与几何连续性,让空间如旋律般生发变化。其逻辑既保证了模块化生产的高效,又为空间组合带来灵活性。Neo-Baroqueism则在同一模块中融入玫瑰花饰、拜占庭纹样与中国海水江崖纹。作品于2025年米兰卫星展亮相,因互动体验与跨文化叙事获得高度评价。
六边形单元的理性结构,既能支撑大规模生产端的可复制性,这正呼应了中国哲学“以简驭繁”的思想:以最简洁的起点,衍生最丰富的可能。他的个人经历同样如此:从在非洲参与跨海大桥建设的工程师,到如今在意大利米兰探索前沿设计的创作者,这条“不标准”的道路让他在理性与感性之间找到独特视角。









顾凡琦在艺术家具与装置创作中探寻形式、感知与人文意象之间的关联。
File Studio由设计师顾凡琦在厦门创立。File Studio是一个基于产品、装置艺术去表达材料和设计逻辑,并通过分析材料转化为细致的视觉效果及策略,来诠释方法和材料多样性的研究型工作室。
在这一年里,File Studio主要以艺术家具和大型的装置群项目两个部分进行创作。“生长系列”艺术家具通过用布料塑化定型的方式,使原本柔软、无定形的纺织纤维材料在特殊处理后转变为坚硬且具支撑性的结构。“枢核”大型艺术装置群是他们为国内的一家私人医美机构所创作的项目委托,旨在探索人类精神世界与外在美的联系,装置是对接收和整合、处理和传递的抽象展现,同时传达个体的精神认同、多元的审美内核和技术的体系维度,借此构建出一个庞大的“微生态系统”,该项目最终在泉州晋江的一座百年古厝完成了项目落地。
在这些作品中,材料的肌理成为概念的重要载体。顾凡琦采用布料塑化定型的方式,使原本柔软、无定形的纺织纤维材料在特殊处理后转变为坚硬且具支撑性的结构。这一转译过程创造出一种视觉与触觉的错位体验。


伦敦创意品牌chöke的第四系列,根植于创始人的挪威成长经历。
chöke是一家2024年在英国伦敦成立的创意品牌,由Neil Zhao携手Ruitong Liu、Issac Wang和Label Chen共同创立。Collection 4 的灵感源自创始人Neil Zhao在挪威的成长经历。那里气候严酷,且文化上更注重“合群”而非“个性张扬”,孕育出一种独特的穿衣氛围:青少年们往往穿着几乎相同的衣服——街上流行昂贵的高性能防雨夹克,平日则习惯将登山服饰作为日常穿搭。这一系列探讨了自我表达与害怕被视为“矫饰”或“肤浅”之间的张力。初看时,单品似乎十分普通,但细节与巧思只会被穿着者或特别细心的人注意到。比如,一件看似经典的条纹衬衫,实际上是用常用于硬壳夹克的压胶拼缝工艺重新构造,并与功能性尼龙面料融合在一起。尽管成立仅一年,chöke已在业界初露头角。



near4rest第四章节“蒙巴萨的漫步者”,将斯瓦希里文化与其现代工艺交融,诠释品牌“原始、玩味、交融”的精神。
蒙巴萨这座拥有非洲古老灵魂的港口城市,从城市建筑风格到宗教信仰 , 都承载着来自阿拉伯、印度和欧洲的印记。near4rest在与当地年轻艺术群体的交流碰撞中,他们受到了对于本地文化理解的启发。“原始 , 玩味 , 交融”是“蒙巴萨的漫步者”系列的关键词, 斯瓦希里文化和传统部落的人文着装,建筑结构,艺术图腾等都是本季的重要灵感来源。在面料与廓形方面,在保留了尼龙、人造环保皮、牛仔等near4rest标志性的现代面料和CUT-OUT分割拼接工艺的同时 , 加入了非洲KANGA面料 , 编织面料和粗糙的裁片与Wrap系结等原始的表达手法。


Chén Sifān 2025秋冬系列审视男性处境,通过华丽外衣与柔软内核的鲜明对比,具象化了个体在社会规训与自我觉醒之间的游离与张力。
在 2025 秋冬系列中, Chén Sifān延续 DNA 从另一个⻆度去解构“秩序”。本系列,男性在他生长的传统社会环境中被要求坚强的、有担当的。但与此同时,所谓的社会地位也成为了男性在社会上的牢笼。这一季Chén Sifān试图创造出一个近乎于乌托邦的世界。系列使用了大量精纺羊毛,华贵的丝绒,珍贵的羊绒,这些精致的表面的背后,可能往往隐藏着人们最本我的一面观众可以看到性别依旧流动,兽性、人性、神性三种特质彼此承托,一起书写男性身上的诗意。


当社会共识被重塑为荒诞的珠宝语言,当日常职业形象被转译为梦幻叙事——YVMIN 2026春夏系列,便在熟悉的物象中重构出全新的趣味与想象。
尤目YVMIN擅长使用现成品的文化共识来进行概念设计,2026春夏与AshleyWilliams合作珠宝系列,以珠宝和服装为载体,共同探讨生活中常见的职业形象。服务人员,职业护士,工厂工人等等,以职业为线索提取具有社会共识感元素,设计成荒诞又梦幻的饰物。玫瑰花点缀的护目镜,也可作为装饰发箍佩戴;卫生卷纸雕刻以菱纹肌理,印有碎花图案,绕成手镯;透明材质结合天然水晶,设计成为大小不一的“家具珠宝”。这些对物品的文化共识将大家联系在一起,即便是重复的日常,也充满有趣的奇想。


Oscar Ouyang 2026春夏系列以“信使”为引,寓言信息时代的情感隔阂。系列借由解构细节与反差工艺,在少年稚气与成熟世故之间,捕捉到一种动人的轻盈姿态。
Oscar Ouyang 2026春夏系列创意源于信使鸟传递的消息永远无法立刻抵达,恰似我们如今的数字生活:混乱、沟通不畅、充斥着无穷无尽、半真半假的信息,品牌隐晦而诗意地表达了人身处信息的茧房之中,但信息却未必能传递到心里。在作品呈现中,具有高级定制时装感的T恤后背露出可拆卸的翅膀,其实是来源自肉类加工业的羽毛被绣在棉质平纹针织布;令人眼前一亮的一件风衣衬里却藏着手枪图案;具有尖锐感觉宽肩设计的华丽感金色针织连衣裙,仿佛能将前排观众一分为二……品牌建立的形象是穿着适合日常的,扎根于工艺的,但又充满趣味与活力,带着一丝狡黠的“Oscar男孩”。他们会穿着着像高级时装感日常服饰,游刃有余在男孩气与成年男性的性感间转换。


J E CAI 2026春夏系列,将建筑、美学与科技三重逻辑精准转化为时装语言。
J E CAI 2026春夏系列,继续以“有规则算法的模块化系统”为核心,探索形态与功能的边界。品牌通过在同一系统中,利用拉链、钮扣等拼合细节,在主体上自由组合配件与额外组件,创造出近乎无限的搭配可能性。新系列不仅延续了 J E CAI 一贯的实验精神与知识分子气质,也让模块化系统在可持续性上更进一步——所有新系列零件均可与旧系列互换,减少浪费。首先,设计以“皮肤般的轻盈”与“制服化元素”的对比为线索,带来了大量轻薄、贴合身体的零件,与统一化、结构化的造型元素形成强烈冲突。这种对比强化了视觉层次,也体现出品牌对身体、功能与形式关系的深度思考。其次,系列首次引入透明真牛皮这一创新材料,用于制作独特零件。整体而言,模块化系统2026春夏系列通过对材质、结构与系统逻辑的重新梳理,延续了品牌一贯的理性美学与前瞻实验性,让“规则”与“变化”在同一系统中并存,创造出更加开放、持续与多元的服装生态。








坐落于崇明生态岛,上海中华学院借助混合功能与开放空间,将学习、交流与自然共生紧密交织,构筑出一个充满活力的社区型校园。
上海中华学院位于崇明生态岛,是一所职业高中和高等职业学校,可容纳三千名学生在校居住,因此除了学习,规划同样重视校园的社区属性,将其看做一个可以容纳公共生活的小镇。
为了鼓励各种自发的聚集和交流,规划打散并混合不同功能,形成了不同类型的综合单体。食堂+游泳馆,剧场+餐厅,篮球馆+图书馆,宿舍+看台或赛艇中心。教学楼也兼备交流、公共活动及私人空间,并把公共性最强的功能设置在地面层。校园里每座建筑都有会面,放松,或自习的空间。
规划的另一个目标是延续场地的原有特征。河道不仅仅是景观,也是一个有活力的公共空间,塑造了一所学校在人们心中的印象。校园空间的核心并不是建筑,而是面朝河岸的大草坪。树木也是设计重点,亘建筑从600余棵大乔中选择了200多棵,与建筑一起塑造一系列外部场所——水岸、院落、广场、树林、草坪,让校园更具生活气息。








耕井伫建筑工作室和土上工作室通过设计激活西安未央区高架桥下的灰色地带,构建了一系列贴近居民日常生活的社区活力场。
高架桥因高速城市化发展的需求,为城市带来了很高的交通效率,但与此同时出现的大面积冗余的桥下空间也因为缺乏定位、管理与设计,成为城市中的“灰色地带”。处理这样一个全球化的问题,对于每一座城市以及每一座城市里的人如何生活至关重要。耕井伫建筑工作室接到区政府的设计任务,在西安未央区对六座高架桥的桥下空间进行更新改造设计。
本次项目为目前已完成的其中两座桥的桥下空间更新设计,保证了项目在有限的造价与紧张的工期中顺利完成。建成后的桥下广场舞活动场不仅为舞者预留了健身表演场地,还同时提供了观众休息的座椅。表演和观看行为互动关系的存在也延展了空间的可能性,集装箱服务空间成为了篮球场旁的重要补充服务设施。









间架工作室通过“分”与“合”的方式重新整合空间,将幼儿园改造为兼具归属感与流动性的整体,以优质教育环境回应社会挑战。
南京大学幼儿园是一所面向社会招生的公立幼儿园,它处于老城中心的大学校园与社会性住宅小区的交接地带。当前,随着人口出生率的下降,幼儿园普遍面临“关停潮”。随着附近部分生源汇入,原本主要作为高校后勤服务资源的幼儿园,也开始更多承担起相应社会责任。南大幼儿园改造项目,通过利用既有存量空间,提升幼教空间品质,改善了社区核心地带的建成环境面貌,使优质教育资源得以持续发展,有助于保持社区活力和吸引力。
在对现实问题的不断应对和解决中,建筑师主动或被动地对空间和构架进行“合”与“分”的处理,并对空间尺度不断做出调节。从而,园区整体呈现出“由局部相互接续所形成的连续空间”,兼具局部场所(place)的稳定感、归属感,与整体空间(space)的流动性、自由感。建筑师相信,这种环境的多义与可读,可以成为幼儿对世界认知的原初风景。









在青山村,塔边市场以竹与钢索的轻盈骨架,撑起了一片融合自然、工艺与公共生活的共享场所。
因近年来长三角地区的青年返乡趋势,青山村的人口构成与生活方式正被重塑,而与之适应的新型公共空间的缺失也越发突出。因此,青山村的塔边市场被塑造为一个全天候开放、可自由进出的“村落共享场所”。清晨大家在这里买菜,饭后在此乘凉散步、聊天带娃,重要时刻还可以在此聚集,举办家宴和表演,甚至村里的狗也自然地在此嬉戏。它既为日常提供具体承载,也在陌生与熟悉之间重建社群的联结与身份认同。
塔边市场的形态不依循既定范本,而是回应在地生活的复杂性。弧形片墙围合的台基承载菜摊、卫生间与回收站,上方则覆盖一顶由最简单的双坡原型衍生成的悬链结构大棚。檐口在轮廓与高度上被反复推敲,不仅确保尺度上的清晰辨识,也尊重邻里生活的隐私,并在形态上强调遮阴与拔风,以增进空间的舒适性。







红岭中学石厦校区凭借开放式设计,在无围墙的格局中融合了街区、公园与课堂,重塑了学校与城市的关系。
在一个城市里,学校与公园、广场、人行道、车站等,组成了街区日常公共生活的共同体。作为社区公共生活拼图的一部分,红岭中学石厦校区的改扩建,与城市相互借力。设计以退为进,通过退让红线打造出街道公园、社区广场,缝合被切断的城市公共界面。这是一座没有围墙的学校。倾斜通透的外立面,使得过往的行人能与校园生活产生互动,学生也可以在空中跑道近距离观察街道的日常,让城市生活也成为学习的一部分。
一座在地的校园,应该积极回应当地的气候特征和人的活动方式。土木石建筑尝试营造一个南方气候友好的校园。在雨热同期的深圳,由高密度设计条件“倒逼”出来的层叠运动场,与通透的外立面相结合,带来一个能让微风自由进入,不用空调,365天都可以奔跑的运动场,为定义南方新校园带来了全新的可能。







位于朝阳区核心区的AI算力园区,以“人机共生”为蓝图,通过虚实交织的空间,将冰冷的算力、建筑与温暖的公共活动融为一体。
北京唯一一个城市中心区域内的人工智能算力园区,坐落于北京市朝阳区酒仙桥核心区;建筑思维推翻原本传统封闭数据信息中心建筑系统,让社会、让人、让活动与建筑、与空间、与虚拟信息智能世界共存。建筑以日光下网格系统物理模式体现,夜光下物理躯体在视线里消失,虚拟信息形成新的建筑物理躯体,并不断演变的整体形式,边生长边存在于城市之中。
建筑空间内,建筑的动力核心为算力,内容发展的动力核心为算力剧场。建筑内人机共生空间以“黑盒子”及“玻璃盒子”为人类空间载体,承载办公、展厅、多功能厅等多元空间。










坐落于怒江大峡谷“天路72拐”上的观景台以“发卡弯”形态悬挑于峡谷之上,藏红色钢结构回应地域文化,在极端环境中完成高难度工程实践,象征人类与自然的勇敢对话。
项目位于G318最危险路段“天路72拐”和怒江大峡谷。所有的设计灵感都来自这条魔幻的景观大道。项目的设计、建造和游客的游玩体验,都展示了极大的挑战精神。观景台作为项目的核心建筑,以怒江72拐标志性的“发卡弯”道路线型为形态与意境的源头。在怒江峡谷130多米落差的悬崖峭壁之上,钢桁架结构向外单臂悬挑37米,在空中形成一条名副其实的“天路”。以藏红色耐候钢板为主材,既是对藏地色彩文化的回应,也能从环境中脱颖而出。
项目在西藏地区的建筑工程中是极具代表性的,几乎囊括了藏区所有建筑工程遇到的问题,对很多藏地工程的建筑实践有着非常重要的意义。项目海拔2800米,空气含氧量低,且正好处于河谷风口,常年伴随六级以上大风。因此做了大量的专项设计论证工作,地灾评估、风洞试验、TMD计算、悬臂钢结构施工模拟等,为后期的施工建造提供了足够的技术支撑。项目建设过程中,联合了多家权威机构及多位业界专家、教授与施工团队一起攻克了重重难关,历时六年,终于让项目得以完美地落地呈现。










“圆形聚落”重构殡葬空间秩序,在当代建筑语言中融入江南村落意象与生命轮回哲思,使生命仪式回归日常与人文的温度。
遂昌殡仪馆位于浙江遂昌一处狭长山谷深处,方案设计以“圆形聚落”为核心理念,构建出融合传统村落结构与现代殡葬功能的建筑群落。场地通过一道百米挡土墙界定村落与殡仪馆的边界,形成了天然的盆地格局,建筑布局借鉴江南水口村落形态,以中央守灵厅与告别厅为核心,向外逐层环绕布置等候区、骨灰堂、火化车间等功能区,形成层层递进的向心型空间秩序。
设计尝试突破殡仪建筑的固有范式,通过当代建筑语言转译地方传统,在实现功能合理性的同时,赋予生死仪式以温度与尊严,是现代殡葬建筑的重要实践。







面对乡镇空心化,吴阳文化站借“同一屋檐”概念,以低成本打造模糊边界的社区客厅,用弹性空间激活乡镇文化与公共生活。
城市化进程中,乡镇面对空心化的困境,地方的历史及文化叙事处于失语状态。建筑师在吴阳文化站项目中拟建集历史文化展厅、临时展馆、会议室、图书室等功能于一体的文化场馆时,试图厘清有别于城市的“乡镇公共性”。
项目总建筑面积为2700平方米,总造价仅为900万元,同时面临后期有限费用的营运困境。建筑师“借用”庙祠的“同一屋檐下”概念传递文化记忆,采用适应南方湿热多雨气候特点的半户外为主要活动空间,用最少的费用创造最大的活动场地。建筑师希望创造一个连续地表,通过熟悉的地面材料及植物把街道延伸进文化站,把周边鲜活的日常延伸进文化站,模糊的文化站物理边界,让场所成为日常。架空的建筑,以“社区客厅”般姿态开放。空间未定义,以弹性适应各种活动的需求。










2025中国美术学院毕业季视觉系统以“七十二变”为主题,将各种日常事物变化成生动简单的视觉图形,组成72张主视觉海报。
你想变成什么?2025中国美术学院毕业季视觉系统以“七十二变”为主题,灵感来源于中国传统文化里孙悟空的72般变化能力,寓意毕业生在艺术道路上的多样探索和无限可能。“七十二变”从最日常的变化出发,物品之变、气候之变、状态之变、时间之变等,去观察、去体会。简单日常,变化无穷,充满生机。2025中国美术学院毕业季视觉系统倡导回到最初的状态,回到懵懂时刻,回到最简单的认知,回到开始,去体会学习、毕业与人生这件事。变是一种分身,常量与变量,变是无穷,却也藏身于万象的有形之躯。72张主视觉海报,每一张都像是一个独立的艺术宇宙,共同编织成一幅宏大的艺术画卷。








sorry dog是隶属于Pidan的“猫咪更友好”咖啡品牌,设计品类除咖啡品牌日常物料外,还包括一张特殊的sorry dog音乐卡片。
sorry dog是隶属于Pidan的“猫咪更友好”咖啡品牌。因为小狗只能待在室外,从名字开始便对小狗道歉。sorrrrrrrrrrrrrry dooooooog像小猫踩在键盘上不小心打出的重复单词,也像日常聊天时用重复字母表示语气的强烈,表达对小狗的歉意。








out.o studio以“诗性”、“交织”与“内外”为指引,通过书籍装帧设计,将埃莱娜·西苏的哲学理论视觉化。
本系列对埃莱娜·西苏著作的装帧设计,是一场将其“女性写作”理论视觉化的实践。视觉上,采用有机感性的语言呼应西苏思想中流动、身体性与反叛的特质。核心的可折叠封面系统,源自文本中内部激情与外部禁锢的张力。特别选用的80g单光白牛皮纸,其“外滑内糙”的双面特性,本身就是一个强烈的触觉隐喻:读者从外部世界的平滑,到亲手翻开、触及内部粗糙的纹理,完整复现了“由外至内”的探索与冲突体验。内封激烈、鲜亮的色彩,穿透质朴的外封纸张,形成朦胧而有力的色晕,象征着西苏笔下无法被禁锢的内在力量与生命感。
out.o studio认为通过触觉与视觉的协同叙事,真实恰当地传递文本核心哲学;在更多时候,书籍谦逊而内敛,以轻盈的材质和回归本质的形态,让美与力量,随阅读慢慢展开。视觉退隐于阅读之后,最终让书籍本身作为一件思想的容器,经得起时间的触摸与阅读。








音乐人Diner的首张个人专辑《penta》由方建平操刀视觉设计,将其对Diner音乐中关于生命体验的直觉感受这一抽象感知进行具象化。
“如同植物枝条与藤蔓的线条,向着明亮之处不断弯折,卷曲,攀爬,生长,以自己的方式‘庆祝生命’。”UDL的合伙人方建平这样描述为Diner首张个人专辑《penta》创作的视觉理念。
作为将古筝与现代电子音乐融合的先锋音乐人,Diner早在2022年就被Apple Music选为“Up Next”艺人,并在大中华区获得首页推荐。几年前,在一次手术中失去子宫后,Diner将这场突如其来的身体裂变转化为声音的出发点。在《penta》中,她回归五声音阶的根源,将身体记忆编织进后朋克、电子和Hi-NRG舞曲的节奏中。
对方建平来说,听完整张专辑后的第一反应是:“藤蔓开花,向上生长”。这种直觉式的理解成为了整套视觉系统的核心。他亲自操刀专辑视觉形象,涵盖定制字体、黑胶唱片包装与数字唱片封面。在字体设计中,“Penta”取自“Pentatonic”(五声音阶),方建平以五线谱作为基线,让每个字母在展现独特造型的同时遵循统一的变化规则。这种设计策略体现了感知力驱动抽象化再具象化的创作过程。他的设计语言与Diner音乐中从创伤中重生的力量彼此呼应,每个细节都是对生命独特而热烈的庆祝。











November Mongolian是天格思专为蒙古文设计的一款字体,继承November拉丁设计特点,也能适应多场景的蒙古文文本应用。
November 是 Typotheque 全球字体系列的一部分,支持数百种语言和各种书写系统。November Mongolian 继承了 November 拉丁设计的理性与实用的设计理念,同时能够处理长篇蒙古文文本。
November Mongolian 对应了 November 拉丁设计的“粗细”和“宽窄”轴,并包含了蒙古文特有的 OpenType 特性,如:动态调整“发髻”和“角”的长度、多个圆头字体之间的 GSUB 重叠修正、全宽和比例宽度标点、竖排和横排标点,以及两种蒙古数字。











梅数植为服装品牌“菊梅”设计品牌视觉与包装系统,设计纯粹而无过多修饰,契合品牌旧物利用的理念,追寻记忆中布料的温度。
菊梅是一个以老布新生为概念的服装品牌,以创始人奶奶的名字—— “菊梅”命名。
菊梅创始人阐述道,“自我记事起,菊梅奶奶会在老屋的庭院里缝东西。太阳白花花的,一把竹椅子,村里的老人找她做老式的衣服,也有过来找奶奶钉扣子的。我在旁边玩一会儿、看一会儿,听她们有一句没一句地家长里短,邻居进进出出。5岁的时候,她用一块蓝底白花的棉布,缝了一套老式的大襟衣裳给我。布料软软的,贴身穿很舒服。洗到后面旧了,发白。如今早已不知所踪,但依旧记得布料的花样,摸上去的粗细、温度、软硬,闻上去的味道,在不同的温度穿上它的感觉。我对布料的记忆中,有很多对她的记忆。之后的日子,我痴迷于触摸和收集各式各样的面料,感受的同时,也在寻找最初的感觉,摸到和穿上那件蓝底白花棉布大襟衣裳的感觉。”











《浪浪山小妖怪》融合中国水墨画肌理与数字动画技术,将传统水墨与现代光影表现手法结合;并深入山西古建筑群实地采风,将传统建筑美学融入场景设计。
作为《中国奇谭》系列首部动画电影,《浪浪山小妖怪》凭借其独特的视觉语言与叙事创新,成为2025年暑期档备受瞩目的现象级作品。影片上映两周即打破中国影史二维动画票房纪录,豆瓣评分高达8.5分,实现了艺术价值与商业反响的双重认可,为中国动画的民族风格探索与传统文化现代转化提供了创新实践样本。











改造后的凯旋坊工作室,利用门洞空间营造出许多几何趣味的细节。
项目坐落于上海长宁区凯旋坊内一栋传统厂房,已作为业主的办公场地使用近十年之久,空间现状为两层:一层为对外开放使用的摄影空间和服务相关工作人员的公共茶歇区;夹层和二层空间用于办公。
设计将一层空间主要设置为影棚和同时容纳入口的接待区,并置入了一个封闭的“盒子”,作为动线从“外向”到“内向”的过渡核心,串联起周边空间。二层的办公空间平面相对完整,设计利用结构轴网将空间重新划分,同时采用不规则角度的几何金属体块作为门洞空间。门洞空间连接着不同的办公功能区,相对私密的功能区采用斜向的玻璃隔断划分,平行于错角旋转的门洞空间轮廓,营造出体感上的几何趣味、但平面上又相对规整的空间逻辑。










北京前门文华东方酒店位于北京草厂胡同片区,庭院设计如中国水墨古画,彰显京派文化底蕴。
北京前门文华东方酒店位于北京前门东区的草厂胡同,是北京唯一一片南北走向的胡同群,也是北京保存最好的老胡同片区,距今已有600多年历史。CCD在修复胡同肌理、重现青砖灰瓦原貌的同时,为空间注入当代生活的温度,以“修旧如旧”的匠心,复原一砖一瓦,保留古树院落,更将电线隐入地下、添置现代卫浴,让老建筑既保留韵味,也拥抱舒适。
大堂庭院以静水、古树、砾石营造水墨画般的静谧意境,四季景致皆成画卷;而客房散落于胡同之中,每间均依原有院落格局差异化设计,借由落地玻璃引入自然光影,将“天棚、鱼缸、石榴树”的老北京生活画面引入室内。以景泰蓝、大漆工艺、掐丝珐琅、陶瓷等传统工艺打造多件艺术珍品,皆将深厚的京派文化底蕴与当代艺术语言融合。











旮旯三宝陶艺工作室以轻盈的方式进行改造,在有限的空间里实现个人生活空间与社区活动空间的共存。
旮旯三宝陶艺工作室位于上海老弄堂里,是由李见深国际陶艺工作室团队与灰空间建筑事务所共同打造的实验性公共艺术空间。在这仅有54平方米的空间里,不仅满足了艺术家驻访、工作、生活的需求,同时通过展览与活动向社区开放,成为融合艺术、交流与生活的公共文化空间。
改造采用轻盈的方式介入:立面底部的红色手工陶砖与上部灰绿色膜材呼应环境色彩并遮掩电线,膜材通过钢索悬挂,可灵活更换展览与活动海报,使立面成为与社区互动的媒介。室内置入“光盒”,以半透材料将二层日光引入一层,结合屋顶高窗实现全屋柔和的光环境与自然通风。设计以预制钢结构加固原有建筑,并通过错层与弹性空间提升空间利用率。展陈家具则由建造过程中的废料制成,减少浪费的同时适应多样化展示需求。










LEMAIRE成都精品店室外利用不同产地材质的砖块堆叠立面,室内以竹子为重点借鉴传统建筑元素,形成具有结构感而氛围静谧自然的舒适空间。
项目位于成都太古里,设计从立面展开。外立面采用福建烧制的高温硬质砖,通过调整比例,使砖条呈细长形态,形成类似竹席的编织肌理,并与摩洛哥Bejmat砖并置,通过比例与排列控制实现对比与协调,塑造均衡的立面表面。
竹子成为室内叙事的重要线索:竹地板承载行走,竹丝编门把手成为第一个触点,外立面竹帘可升降,勾勒廊道并提供遮蔽,强化空间边界。室内墙面、地面和挂钩的交接处借鉴地栿、木梁等传统建筑元素,增强结构感。整体设计通过立面、台阶、花园、竹材与细节共同作用,形成层次清晰、构造严谨、可容纳日常使用的空间体验。











伊索北京19号府,西拥传统胡同东临都市商场,利用“家具”将当代商铺空间巧妙融入传统建筑。
项目位于北京王府井,城市肌理在基地两侧发生突变:西边是胡同与传统民居,东边是大尺度的道路和商场。基地的古建筑群原是清代皇家贝子府的一路,是从东侧商场中心所在的位置平移到此处的复建。一期院子的空间概念来源于老北京的夏日凉棚。二期的搭建方式来源于汉代“幄帐”。整体平面形式均为环状,客人先经过游廊再到达各个独立的房间,丰富了空间序列。
正房和东西厢房均为三开间,对于商铺来说单体内空间略显局促。设计师希望置入的功能仿佛已经长久地“生长”在其中,所以通过“家具”作为载体介入。设计参考了多种经典的明代家具,其中体量最大的是拔步床。数个2.2米见方的“拔步床”被深思熟虑地归置在建筑中,家具达到了从私密性向公共性的转换,也形成了内与外的空间。在其内部,客人可以体验洗手、洁面、试香这些功能,而在其之外可随意散步和选购产品。










山外的基地位于丛林中的一栋上世纪末的办公大楼,设立了许多独特的在地装置作为“玩具”,在这里,父母能够与孩子一起“重新体验”世界。
创立于2023年初,山外是一个面向家庭养育发起的社会设计项目,以关注下一代成长经验为核心形成的微型养育集合体,探索与实践当代家庭养育与社会养育的更多可能性,由此回应当下全球对养育、文化、生态和社区再造的深刻议题。作为一个动态场域,山外不是一所学校,这里没有固定的课程,取而代之的是创造各种独立于现有知识标准化之外的具身体验(Embodied Experience):引导孩子在创造性活动中独立思考、多元感知,也陪伴家长跳出“问题思维”,在张力中找到自我平衡,看见孩子的生命潜能。







AmilGer®充气式蒙古包帐篷承袭游牧文化的建筑智慧,以现代技术重塑自然体验,让人与自然的关系更近一步。
AmilGer®充气式蒙古包帐篷是一项以“优化人类自然体验”为核心的空间设计项目。它结合蒙古包的结构智慧与现代科技材料,在搭建便捷性、空间舒适性与心理安定性三方面进行了系统优化,探索了人与自然更平衡、更从容的连接方式。AmilGer 希望以设计为媒介,让回归自然成为一种日常。让自由、流动、坚韧、与自然同频的游牧精神,在当代重新生长。










非凡比率体验设计团队基于全球人体数据库与大量研究数据,自主研发舒适度测量设备,将人体舒适度量化为可实现的产品设计指标。
歌尔集团旗下的体验设计品牌非凡比率(ULTRA METRIC)设计团队系统性地破解了舒适度设计中的三大行业难题:缺乏精准的设计依据、缺少客观的设计方法,以及有效的体验度量工具。
非凡比率通过自研的Global Fit全球人体数据库,汇聚六大洲40余国、规模达50万级的人体形态数据,并融合人体生理参数与感知阈值信息,依托“高保真”层级聚类算法,构建出科学严谨的标准人体分类模型。结合自主研发的数字化体验模拟评估系统及体验质量检测设备,打造出覆盖设计、测试与决策的全链路解决方案,将原本模糊的“舒适”感转化为可量化的设计指标。








“建造上海”从展品设计、空间组织、艺术创作三个维度让公众跟随策展场景的切换体验上海是如何建成的。
“建造上海”的策展场景体验设计包含三个层次:第一, 将80余个建筑作品的不同类型档案与资料组合作为“展品”,形成复合的展陈媒介穿插在策展叙事之中。这些媒介在此作为一种触发机制,并未将建筑简化为当代艺术的小众门类,而是调动观众去观看、触摸、聆听、想象一个整体性的、时代性的上海。第二,“建造上海”的空间组织与展陈设计,反映了时间、事件、地理位置交织的策展叙事逻辑,透过一系列“窗之间”的设计,让不同场景的逾越与连接成为可能。无论是展墙中时常出现的巨大窗洞,还是展厅临江的通高窗户,穿行在其中的观众随时被置入前一刻的语境,亦成为窗景中不可分割的一环。第三,“建造上海”通过五组艺术家的创作,将观者的体验置于策展的核心脉络——在宏大叙事之外,在折叠上海之中,日常生活的细微之处悄然浮现,记忆由此被重新建造。











洛克·外滩源由一系列经由修缮和改造的历史建筑群组成,建筑间形成多个开放的广场和小巷,为公众多元的文化活动体验提供空间。
洛克·外滩源位于上海市中心著名的外滩北端,由一系列百年历史建筑组成。这些建筑沿着圆明园路东侧形成了连续的街面,欧洲建筑风格与亚洲元素相结合,体现了这一时期建筑的多样性。一个由国际建筑师组成的团队规划了这一地区的复兴。它将容纳办公、公寓、咖啡、餐厅和零售功能,同时向苏州河滨及周边公园展现宏伟的城市姿态。戴卫奇普菲尔德建筑事务所受委托在这个区域的开发中修缮和改造11座历史建筑。
修缮的概念致力于以充满尊严和风貌的方式展示这些历经岁月考验的建筑。在历史进程中,这些建筑经历了各种改建和搭建——它们都被拆除,将建筑物恢复到原来的状态。外墙经过仔细的清洁和修复,避免破坏原来的结构。为了适应新的当代功能需要,一些建筑物的现有结构在屋顶区域内的得到了扩展。
戴卫奇普菲尔德建筑事务所又受委托设计了整个街区内巷的景观。一系列的小巷连接着东侧的历史建筑和西侧的新建住宅建筑之间形成的内部广场。作为外滩源项目的最后补充,它旨在将这些传统的内向剩余空间转变为整体公共功能和城市界面的延伸,同时为不同的公共活动和功能提供灵活空间。为当下洛克·外滩源的街区活力打造了一个动人的舞台。









一纸桥的灵感源自A4纸的一道折痕,轻薄如“纸”却沉稳如“山”,纤细钢筋的结构带来视觉与体验的反差感。隐桥整桥跨度13.5米,如同一个扁豆荚,由两片钢板焊接而成。
一纸桥,源于对一张A4纸的想象。如何让一张纸,仅仅通过几条折痕便可达到一定的力学强度,同时又能维持纸张本身轻薄且略有脆弱的反差感。泛式设计在测试多种折痕的可能性后,选择了仅通过一条折痕来实现桥梁跨度的想法。在与张准老师的和作结构研究所的合作中,泛式建筑确认了通过三条构造曲线以及一个构造点来拟合折痕的桥体形式。通过反复调整三条构造线的曲率以及上方构造点的位置来寻找受力的最佳分布。
隐桥探讨了如何让桥跟时间粘结在一起的问题,将隐桥的设计高度降至接近水面,桥便不能独善其身,溪水的涨落时时刻刻都会影响着桥的呈现,整桥跨度13.5米,如同一个扁豆荚,由两片钢板焊接而成。引入与自然暧昧的边界,重新与自然建立某种诗意的关系。










植根于道家思想与工业实用主义,Keimfleck擅长将阴阳法则转化为结构方法论,在对立中建立延续性,通过内在一致性塑造形态呈现为家具和可佩戴物件。
Keimfleck镜面Torus棋盘灯桌融合道家阴阳哲学与Torus Field(环面能量场)的拓扑结构思维。作品采用内嵌灯光与镜面底座的设计,光线经棋盘桌透射,再由镜面反射回中心,构成一个自我循环的立体光场,形成太极阴阳图式在三维空间中的流动写照。
太极椅几组合以玉石茶几为太极中轴,双椅则承载“天”与“地”的动态平衡。二者如阴阳互济般流转共生——当一方能量达至顶峰,另一方便悄然萌发,形成周而复始的张力关系。阴阳玉茶几灵感源自中国园林的造景逻辑:半透明玉质台面隐约透出下部中空柱体,亚克力支柱托起环形玉盘,与中心留空处形成平衡对话。







上海设计周可持续实践中心(SPC)推出的首款平台型材料泥晶玻璃。
在城市化进程加速的当下,人们在“城市物质代谢”的复杂命题里,将“污泥”视作城市代谢的未来矿产之一,通过“污泥焚烧灰渣玻璃化”技术将上海城市污水处理废弃物转化为泥晶玻璃,消除传统填埋导致的土壤与地下水污染风险,完成从环境负担到被重新看见的材料语言的价值跃升。
作为上海设计周可持续实践中心(SPC)推出的首款平台型材料,以“材料包”的开源模式为设计师、品牌方提供一个充满想象空间的创作基底,让“城市基因”以材料为介质融入产品的开发创作中,通过“就地资源化”实现废弃物的局部消纳与产业再利用,以设计升维废弃物的价值,打造“从城市废弃物到城市产品”的循环共生链。






长江林场建造的木屋群落以轻钢结构和数字榫卯技术打造,无需螺钉和胶水,快速安装于林木缝隙之间,形成与水网人工林地带相适应的特色聚落。
长江林场创建于上世纪70年代,曾是太仓地区规模最大的林业场圃。这里既保留了长江的原生岸线,也有成片的人工林,可总结为生产造就的当代景观。神奇建筑研究室通过植入木屋群落展开自然认知和户外体验,是对旧林场复兴的一种尝试。
神奇建筑研究室以轻钢结构装配和PFS数字榫卯技术为基础,利用松木胶合板和可循环矿物纤维板,通过在地建厂,数字化加工简化建造难度,在1个月内便完成了15个木屋单体和3组轻钢配套房屋的安装。这些建筑穿插于林木的缝隙之间,巧妙地利用了在地景观,形成适应水网人工林地带的特色聚落。同时有别于传统木构,通过高精度的CNC数字技术加工而成,搭建过程不需要螺钉和胶水。这个过程既环保,又无须专业的工人参与,它让建造行为具备了公共性。项目的生态友好和在地性已经超出了传统中材料、形式和工艺的在地化考量,而是基于当代中国社会与风土的新尝试。







花信植物园园区贯彻可持续理念,利用水循环系统和再生材料建造园路、石壁与座椅,实现资源循环与绿色环保设计。
花信植物园位于浙江嘉兴桐乡市,由园艺科技企业“花信”建设,占地约15亩,是一座面向大众的园艺科普植物园。设计与建造顺应自然,借助地势、水体与乡土植物塑造环境,通过园艺与自然的融合,让人们在亲近自然的过程中获得知识,也在四季更替的花木之中感受情绪的安抚与身心的放松。
项目贯彻可持续理念,重视资源循环与材料再利用。园区采用乡土乔灌木构建生态骨架,排水渠与池塘相连形成灌溉循环,深井改造为水源热泵系统,实现冷热交换与水资源回用。建造中,大量使用再生材料——旧水泥板、铁路枕木、乌桕树干与木材边角料被重新设计为园路、石壁与座椅,体现了绿色环保的设计思路。






自然温和的材质和简洁生命感的设计营造安宁氛围。归从通过同时提供个性化、陪伴式的系列殡仪服务,帮助生者在告别中获得慰藉与自我疗愈。
归丛是中国首家原创生命善终品牌,成立于2023年,专注于生死观念、用品设计与礼仪服务的创新。品牌以“用美与温度予逝者以释然,予生者以慰藉”为核心理念,致力于通过设计与美学的介入,为传统殡葬领域带来更具人文关怀和情感温度的体验。
在产品设计方面,归丛注重材质与触感体验,选用自然、温和的材料,通过简洁且富有生命感的设计语言,营造安宁、柔和的氛围。品牌希望借由设计的力量,将悲伤的情绪转化为积极的情感表达与自我疗愈的过程。在服务层面,归丛提供全程陪伴式殡仪服务,重视个体化与情感共鸣。






vivo原系统6通过堆叠式设计、实时模糊升级与全新渐进模糊效果以及采用无级可变技术的全局可变图标,让图标与文字动态统一,显著减轻视觉负担。
vivo 原系统致力于打造一个与现实无缝连接的数字世界,从自然界物理规律中获取灵感,旨在创造更符合直觉的体验。
在空间秩序上,原系统6通过“堆叠式设计”突破信息呈现的平面限制;“动态透彩”材质与自研算法提升了界面通透感;借助“三层着色”与实时模糊技术,实现了更细腻真实的视觉渲染;模拟人眼对焦的“渐进模糊”则有效分离复杂层次,帮助用户专注当下。同时,“全局可变图标” 所采用的 “无极可变”技术让图标与文字动态统一,显著减轻视觉负担。






ROMO P 将极简美学与智能清洁体验融合;基站采用模块化设计,隐藏功能系统,同时呈现交互组件,整体将智能科技融入家居美学。
ROMO P 作为首款透明设计的扫地机器人,延续大疆极简美学,将工业设计与生活场景融为一体。产品通过高度集成的感知系统与智能算法,提供更可靠、聪明、安静的清洁体验,也回应了宠物友好、银发经济等新生活需求。其透明外观让科技过程清晰可见,将“功能”转译为“美学”。
ROMO P 基站采用模块化架构与内外分区设计,内部隐藏电控、降噪和 UV 杀菌系统,外部呈现与用户交互的水箱与集尘组件。一体式拖布清洁系统结合清晰的结构表达,形成独特的科技语言。这不仅是一款产品,更是大疆对家居空间智能化的深度思考——让科技成为生活美学的一部分。







RoBIM 通过“软件定义制造+数字孪生”整合设计、工艺与生产数据,实现多品牌设备兼容的柔性智造。
RoBIM作为“智能机器人大脑”的工业软件,以“连接机器人网络与物理制造现场”为目标,应对制造业“规模化效率vs.个性化定制”的结构性矛盾。它打通从设计到制造的“数据孤岛”,让 CAD、工艺与生产在同一平台上顺畅流动;全栈自研内核提供 AI 识图与工艺参数智能推荐、知识沉淀、虚拟仿真与多传感融合,使机器人具备自主感知、决策与优化能力。
以“软件定义制造+数字孪生”重构生产线,RoBIM 能在统一平台兼容多品牌设备,面向钢结构、船舶等长尾行业落地柔性智造,降低集成门槛并激活存量市场。





雅兰研发中心整体设计将材料、结构与算法融合,提供兼具美学、功能与健康关怀的现代睡眠体验。
“既白床垫”以人文科技为核心,将材料、结构与算法融合为智能睡眠系统。外观采用“云霭灰”与格纹秩序,配合透气导流结构,兼顾审美与洁净。核心搭载专利云矩阵2.0系统,18组双层簧体分区支撑头、肩、腰、臀等六大部位,精准贴合脊柱并递进释压。高碳钢簧体耐 20,000 次折叠,结构稳定耐久。床垫内置音乐震子模块,6 处马达对 15–150Hz 信号毫秒响应,将声波转化为频谱按摩。辅以智能止鼾、ZG 零压、仿生摇篮、呼吸监测与全屋物联,打造沉浸式多模态康养体验,使床垫成为集美学、科技与健康于一体的智能睡眠终端。







装置在山间从落位到宴席摆设,到村民聚会,再到拆除恢复场地,仅仅半天时间。通过共餐仪式,激活了乡村社区的互动活力。
项目地点位于湖南隆回县白水洞村岩儿塘,合作方为湖南大学建筑与规划学院,装置坐落于一块当地瑶族传统节庆及公共活动的天然巨石上,山谷溪流飞跃在巨石之间。工作坊以瑶族节日文化为灵感,以当地自然材料为媒介,通过八天的调研、设计和建造,最终呈现出一个兼具桥梁、厨房操作台、临时庇护所和乐器功能的建筑装置,并以一场与50余位当地村民共享的林间野宴作为高潮。
装置在山间从落位到宴席摆设,到村民聚会,再到拆除恢复场地,仅仅半天时间。通过共餐仪式,激活了乡村社区的互动活力。真正的公共艺术能够消除创作者与受众的界限,让每个人成为艺术的参与者而非旁观者。









展览现场呈现出由绘画、影像与装置交织构成的沉浸空间,观众在红色光影与动态影像之间,感受艺术家以AI与人文思考交汇出的未来图景。
艺术家蒲英玮于5月17日画廊周北京2025“北京艺术季”期间,于蜂巢|北京主展厅与前厅穹顶空间呈现全新个展 “红色计算机”。
此次展览延续了蒲英玮对社会议题的深切关注,结合其过往的数字创作脉络, 以及近年来对AI技术的多元探索,呈现全新的系列绘画、动画影像与场域装置;并首次发布以蒲英玮的核心创作理念为蓝本、通过深度学习其绘画、摄影及档案资料而构建的生成式大模型“红色工程师”,展现其对当下时代的前沿思考。”








现场呈现出艺术装置与山林、村落相融的景象,作品散布于自然之间,构成人与环境共生的开放式艺术场域。
当艺术走出美术馆,走出大城市,走向更广阔的天地,它正在成为一种全新的体验模式。广东南海大地艺术节作为国内首个全域性的地域型艺术节,通过广域跨界的策展行动,持续性致力于以文化艺术带动地域振兴。
广东南海大地艺术节自2022年于佛山市南海区西樵镇首次举办以来,两届共汇聚了来自31个国家和地区的239组共271位艺术家,创作了131组共353件艺术作品。同时,艺术节以正展期与日常运营期结合的创新形式,在四季流转之间,以不同规模和内容有序开放,展现在地魅力。










“补交作业计划” 第一期由银川当代美术馆支持,并于2024年7月13日至10月28日进行这个项目的首次展览。
“补交作业计划”由艺术家李维伊于2024年发起,邀请活跃于国内的职业艺术家,从现行人教版小学美术课本中各自挑选一课作业进行再创作。义务教育阶段的美术课程,几乎是社会中每个人最初、甚至可能是唯一的艺术经历。然而,它与当下专业艺术创作之间存在巨大的空白。对这段缺口的忽视,往往会带来双向的结果:观众因此倾向于把当代艺术神秘化,仿佛艺术家总是凭空出现的;而艺术家则与社会最普遍的艺术经验逐渐疏远。本计划正是希望通过“最专业”的艺术家的参与创作来回应、检视甚至挑战我们的艺术基础教育。
首批艺术家由银川当代美术馆支持创作,并于2024年举办首展,参展艺术家为:高磊、葛宇路、蒋志、李明、谭天、武子杨、宋雨桉+杨圆圆、展望。








主体装置可折叠运输,降低成本与搭建时间,展后实现零废弃。装置以光伏供能,形成能源闭环;以三重同心圆象征农耕、工业与生态文明的演进,自内向外呈现人与建造环境从适应、改造到共生的关系。外环展示《循环手册》中的典型案例与愿景,并通过地面投影与手册内容联动。
PILLS创始人、主持建筑师王子耕受总策展人Carlo Ratti邀请,主持2025年威尼斯国际建筑双年展主展区特别项目“循环手册”的研究编写及装置设计。作品包含两个组成部分:其一为面向参展者的可持续展览指南《循环手册》;其二为由此衍生的可循环拆卸装置,将文本内容转化为可感知的空间体验。
手册围绕展览周期的四个阶段——设计、建造、展览期间与展后管理——提出具有针对性的策略与行动指引。同时,手册附有动态在线表单,供贡献者共享地方资源信息,构建不断更新的社区资源库。手册与装置相辅相成,激励设计师重新思考设计实践,推动实现创新的可持续发展路径。






观众通过暂存手机与艺术家交换,获得文本和气球,按照文本指令,在空间中进行听觉体验与探索。气球标识观众位置,使得整个场域形成可视化、不断变化的聆听共同体。
作为一个特定场域的公共艺术作品,“我听到了”需要依据每次作品实施所在的地理场景重新创作。艺术家围绕听觉的感知意识,历史中的声音观念,作品发生地的空间环境,重新书写文本;邀请观众在阅读文本的过程中执行聆听练习,思考声音观念,游历空间现场。在具体的环境中切身感受听觉的各个姿态,以此遭遇艺术家提出的“在聆听中生成的多义整体的声音”。
观众以暂存手机的方式,与艺术家进行交换,从而得到一份指令性文本和一个轻质的标签——气球。指令性文本指导观众自主实施听觉作品。相较于通常的表演,表演者和观演者的边界消失。







装置内部空间尺度适中,围合的结构让观众可以近距离感受,产生安全与私密感。材质上以自然或柔软的表面为主,触觉和光线处理细腻,使人容易在其中停留、移动与互动,营造出与身体、情感和记忆产生亲密联系的体验。
在2024 年夏天,CPLUS 创作的“母体”空间装置在泰康美术馆 A 展厅展出。作品聚焦地标性城市空间中被忽视的个体感知,鼓励人们在对近身空间的共同探索中建立与城市的情感联系。以“缓解现代都市的疏离感”为触点,CPLUS创造了一个能够与身体、情感和记忆产生亲密联系的场所。







展览以轻盈灵活的木结构搭建开放空间,呈现近60件声音作品及大量文献资料。作品涵盖现场录音、声响装置、单通道视频、声音表演记录、实验性音乐及交互式多通道装置。
展览“震荡不消磁——探测1990年以来中国内地和香港的声音实践”聚焦在中国内地及香港发生的声音创作及其历史,旨在将声音艺术视作一种能动且具有渗透力的实践方法,探索其对话现实的诸多可能。
该研究展源自英国策展人、研究者李蔼德在过去十几年间对于中国内地及香港声音艺术实践的持续观察与研究,其中包括他多年间身处现场的体验与记录。该研究展以声音的发生空间为策展结构,将近60件作品及大量文献重组为空间线索,使观众在穿行中如同追踪声波的流动,体察声音如何生成空间、触及现实。空间与平面设计在展览中承担着“转译”的角色:如何让不可见的声音被看见、被阅读、被感知。